Objektart
Adresse
Objektdaten
Informationen
Ausstattung
Details
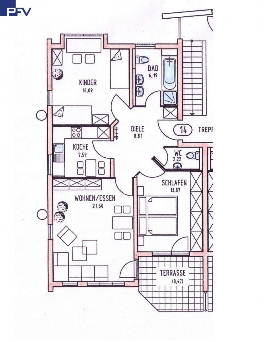
Zu dieser gemütlichen und modernen Wohnung im EG gehört ein nach Süden gerichteter Garten mit gemütlicher Terrasse, auf der Sie entspannen können, während sich Ihr Kind unbehelligt in der Umgebung austoben kann. Sie ist schön sowie praktikabel geschnitten und bietet Ihnen und Ihren Lieben ein gemütliches Zuhause.
Das hell geflieste Bad ist ausgestattet mit Badewanne, Dusche, Waschbecken, WC und hat ein Fenster. Außerdem ist eine Gästetoilette mit Waschbecken vorhanden.
Die familienfreundlich und funktional gestaltete 3-Zimmer-Wohnung ist mit Laminatböden in allen Räumen bzw. Fliesen in den Bädern und Küche ausgestattet.
Wasch-/Trockenkeller sowie ein Kellerabteil sind vorhanden. Ebenfalls ein separat absperrbarer Tiefgaragenstellplatz (zus. 8.000 EUR ).
Röthenbach ist ein Ortsteil von Wendelstein im Speckgürtel Nürnbergs. Die Wohnanlage befindet sich
zwischen dem romantischen Ludwig-Donau-Main-Kanal und dem Reichswald.
Im Sommer ideal für Radfahrer, im Winter für Schlittschuhläufer.
Die vorbildliche Grundschule, der Montessori-Kindergarten und Hort sind ebenso wie Einkaufsmöglichkeiten für den täglichen Bedarf in fußläufiger Entfernung. Nürnberg ist mit dem Auto oder Bus in ca. 15 Minuten zu erreichen.
Die Wohnanlage und Umgebung ist besonders kinderfreundlich. Viele junge Familien sind hier zugezogen und fühlen sich wohl. Der Kinderspielplatz ist über Wohnwege sicher zu erreichen
Rufen Sie gleich an und vereinbaren Sie einen Besichtigungstermin - 0911 / 59 83 790 - Frau Hofmann freut sich auf Ihren Anruf!
Übrigens: Es fällt KEINE Makler-Courtage für Sie an!
Downloads
Energieausweis (Verbrauchsausweis)
89 kWh / (m²*a) Energieverbrauchskennwert
89 kWh / (m²*a) Energieverbrauchskennwert
89 kWh / (m²*a) Energieverbrauchskennwert
Weitere Informationen
| Wesentlicher Energieträger | Fernwärme |
| Energieverbrauch für Warmwasser | enthalten |
| Energieausweis Baujahr | 1998 |
| Energieausweis Gebäudeart | Wohngebäude |
| Heizung | Zentralheizung |
| Befeuerung | Fernwärme |
Ich bin damit einverstanden, dass mir Karten von Google angezeigt werden. Es gelten die Datenschutzbedingungen von Google (https://policies.google.com/privacy).
Ich bin einverstanden