Objektart
Adresse
Objektdaten
Informationen
Ausstattung
Details
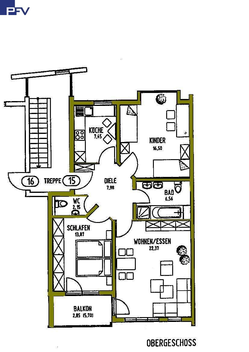
Diese moderne 3-Zimmer-Wohnung im 1. OG ist dank der vielen und meist bodentiefen Fenster hell und sehr gemütlich geschnitten. Vom ca. 22 m² großen Wohnzimmer sowie auch vom Schlafzimmer gelangen Sie auf den nach Süden gerichteten und überdachten Balkon (ca. 6 m²). Es ist eine Einbauküche mit hochwertigen Siemens-Geräten vorhanden, die vom Mieter mit Elektogeräten (1800 EUR)oder ohne Elektogeräte (400 EUR) abgelöst werden kann. Die Wohnung wurde von der Mieterin sehr sauber gehalten und befindet sich auch in gepflegter und gewachsener Umgebung - der Hausmeister (inkl. Hausordnung) und die Hausverwaltung kümmern sich um den ordentlichen Erhalt des gesamten Gebäudes, so dass dieses einen sehr gepflegten Eindruck macht. Die Fassade des gesamten Anwesens wurde 2010 neu gestrichen.
Das hell geflieste Bad ist ausgestattet mit Badewanne, Dusche, 2 Waschbecken und WC. Zusätzlich ist eine Gästetoilette mit Waschbecken vorhanden.
Die familienfreundlich und gemütlich & funktional gestaltete Wohnung ist mit Laminatböden in allen Wohnräumen bzw. hellen Bodenfliesen in den Bädern, dem Flur und der Küche ausgestattet.
Wasch-/Trockenkeller sowie ein Kellerabteil sind im Keller vorhanden. Für Ihr Auto gibt es einen Carport vor dem Haus. Ein separat absperrbarer Tiefgaragenstellplatz mit direktem Zugang zum Haus kann ebenfalls für 10.000 EUR dazu erworben werden.
Röthenbach ist ein Ortsteil von Wendelstein. Die Wohnanlage befindet sich zwischen dem romantischen Ludwig-Donau-Main-Kanal und dem Reichswald.
Im Sommer ideal für Radfahrer, im Winter für Schlittschuhläufer.
Die vorbildliche Grundschule, der Montessori-Kindergarten und Hort sind ebenso wie Einkaufsmöglichkeiten für den täglichen Bedarf in fußläufiger Entfernung. Nürnberg-Zentrum ist mit dem Auto in ca. 20 Minuten zu erreichen. Der Bus benötigt ca. 15 Minuten zum Bus/-U-Bahnhof Langwasser Mitte.
Die Wohnanlage und Umgebung ist besonders kinderfreundlich. Viele junge Familien sind hier zugezogen und fühlen sich wohl. Der Kinderspielplatz ist über Wohnwege sicher zu erreichen
Die Wohnung ist bis 06.08.2011 reserviert.
Gerne zeigt Ihnen Herr Hofmann die Wohnung - rufen Sie einfach unverbindlich unter 0911 - 59 83 79-0 oder mobil unter 0178-348 41 41 an.
Die Wohnung ist ab Mitte August frei und kann dann bezogen werden.
Die Angaben beruhen auf Auskünften des Eigentümers - wir übernehmen keine Haftung für deren Richtigkeit. Änderungen und Irrtum bleiben vorbehalten.
Der Vermittler ist mit dem Verkäufer verwandt.
Energieausweis (Verbrauchsausweis)
89 kWh / (m²*a) Energieverbrauchskennwert
89 kWh / (m²*a) Energieverbrauchskennwert
89 kWh / (m²*a) Energieverbrauchskennwert
Weitere Informationen
| Wesentlicher Energieträger | Fernwärme |
| Energieverbrauch für Warmwasser | enthalten |
| Energieausweis Baujahr | 1998 |
| Energieausweis Gebäudeart | Wohngebäude |
| Heizung | Zentralheizung |
| Befeuerung | Fernwärme |
Ich bin damit einverstanden, dass mir Karten von Google angezeigt werden. Es gelten die Datenschutzbedingungen von Google (https://policies.google.com/privacy).
Ich bin einverstanden