Objektart
Adresse
Objektdaten
Informationen
Ausstattung
Details
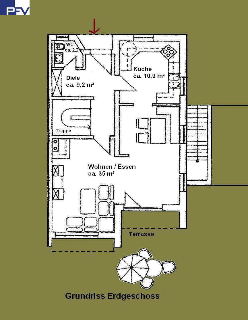
Die ruhig und in einem gepflegten Umfeld gelegene DHH wurde im Jahr 1994 in Rednitzhembach auf einem 367 m² großen und in einer Sackgasse (Zone 30) gelegenen Grundstück in Massivbauweise (Ziegel) errichtet. Sie macht einen ansprechenden und gepflegten Eindruck und bietet Familien ein wohnliches Zuhause. Auf der Süd-Terrasse entspannen Sie mit Blick in den schön angelegten Garten. Es befinden sich auf dem Grundstück eine Garage mit Satteldach und ein Stellplatz. Der großzügige Wohn- u.Essbereich (35 m²) mit schönem Kachelofen läd zum gemütlichen Verweilen ein. Eine Einbauküche ist im Preis enthalten. Das Dachgeschoss ist ausgebaut und bietet ca. 15 m² Platz z.B. als Arbeitszimmer. Das Haus ist vollunterkellert (mit Außenabgangstreppe) und der 26 m² große Hobbyraum ist auch z.B. für Gäste geeignet. Anschlüsse für Dusche und WC sind im Keller vorbereitet.
In den Wohn- und Schlafräumen sowie Küche und Bad sind helle Fliesen verlegt. Auch der Keller ist hell gefliest. Im Dachgeschoss liegt Teppich. Die gesamte Treppenanlage im Haus ist mit Jura-Marmorstufen belegt. Die Beheizung erfolgt über eine Gastherme - an kalten Tagen können Sie es sich am hell gefliesten Kachelofen gemütlich machen.
Das Haus ist ab sofort bezugsfrei
Das Haus befindet sich in einem gepflegten und gewachsenen Umfeld in einem reinen Wohngebiet im OT Igelsdorf am südlichen Rand von Schwabach. Die Entfernung nach Schwabach Zentrum beträgt ca. 5 km. Bushaltestellen sind in ca. 250 m, der S-Bahnhof in ca. 900 m Entfernung. Die Autobahn A 6 - Anschlussstelle Schwbach Süd erreichen Sie in ca. 1,5 km, zur B2 sind es ca. 4 km. Nürnberg Zentrum erreichen Sie über die Autobahn in ca. 20 Minuten (ca. 20 km). In Rednitzhembach gibt es einen Kindergarten sowie eine Volksschule, weiterführende Schulen befinden sich in Schwabach und Roth. Ärztliche Versorgung und Einkaufsmöglichkeiten finden Sie ebenfalls in der Nähe. Mit dem Fahrrad erreichen Sie für ausgedehnte Touren schnell den Main-Donau-Kanal, zu Spaziergängen laden die nahe gelegenen Wälder ein.
Gerne laden wir Sie zu einer Besichtigung ein - unsere Frau Hofmann freut sich auf Ihren Anruf: 0911 - 59 83 79 - 0
Die Angaben beruhen auf den Auskünften des Eigentümers - wir übernehmen keine Haftung für deren Richtigkeit. Irrtümer und Änderungen vorbehalten.
Ich bin damit einverstanden, dass mir Karten von Google angezeigt werden. Es gelten die Datenschutzbedingungen von Google (https://policies.google.com/privacy).
Ich bin einverstanden