Historisches und gemütliches Mehrfamilienhaus mit profitabler Gastronomie auf ca. 169 m² mit ca. 160 m² Terrasse, 3 Wohnungen und Ausbaufläche im Dach
Objektart
Adresse
Objektdaten
Informationen
Ausstattung
Details
Dieses historische Haus aus dem Jahr 1899 besticht durch sein gemütliches Flair und seine vielfältigen Nutzungsmöglichkeiten.
Es hat den für das Baujahr typischen Charakter eines charmanten Frankenhauses mit Erdgeschoss und hohem Dach mit mehreren Dachgeschossen sowie den Sandsteinwänden, die teilweise in den oberen Dachgeschossen sichtbar sind.
- Es eignet sich für Generationswohnen und Großfamilien, die zusammen unter einem Dach wohnen möchten
- Es eignet sich für Wohnen und Arbeiten unter einem Dach ggfs. auch mit zusätzlichen Mieteinnahmen durch Vermietung einzelner Wohnungen
- Es eignet sich als reine Kapitalanlage mit guter Rendite durch Mieteinnahmen aus Gewerbe und Wohnen
- Es eignet sich zum Eigennutz einer Wohnung und Vermietung der anderen Wohnungen - Schaffung weiteren Wohnraumes möglich
Das Anwesen wurde seit 2015 regelmäßig modernisiert.
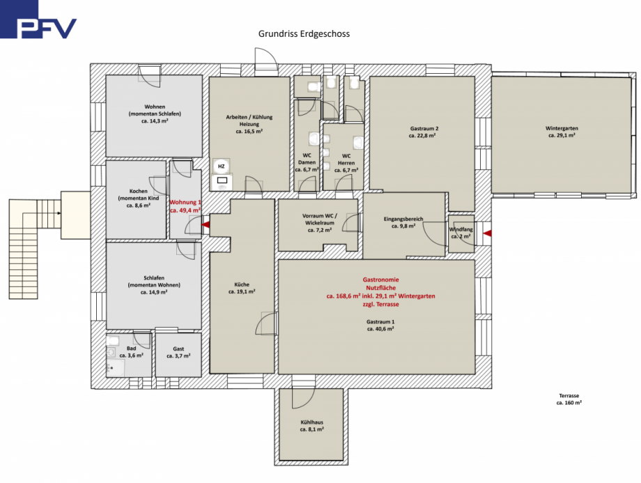
Im Erdgeschoss befindet sich eine ca. 49 m² große 2-Zimmer-Wohnung mit Möglichkeit für einen kleinem Garten sowie das voll ausgestattete griechische Restaurant "Taverne Areti" mit ca. 169 m² Nutzfläche zzgl. einer ca. 160 m² großen Terrasse. Das Restaurant wurde 2016 inkl. Küche und Einrichtung renoviert und ist modern und gemütlich gestaltet. Die Räume umfassen zwei durch den offenen Eingangsbereich miteinander verbundene Gasträumen (ca. 41 m² und 23 m²), einen Wintergarten (ca. 29 m²), die Küche (ca. 19 m²), ein Kühlhaus (ca. 8 m²), WC´s mit Vorraum (ca. 21 m²) und ein Arbeitszimmer (ca. 17 m²), in dem auch die Heizung und weitere Kühlschränke untergebracht sind. Das Restaurant ist sehr beliebt mit zahlreichen Stammkunden und es ist entsprechend profitabel - geeignet zum Weiterbetrieb aber auch zur Verpachtung.
Im 1. Dachgeschoss wurden 2020 die zwei Wohnungen umfassend renoviert und sie bieten heute modernes Wohnen in großzügig geschnittenen Räumen. Eine ca. 68 ² große 2-Zimmer-Wohnung mit großer Einbauküche und eine ca. 77 m² große 3-Zimmer-Wohnung. Beide Wohnungen je mit großem und geschmackvollem Wannen-Bad mit Fenster.
Das 2. Dachgeschoss ist vorbereitet für einen Ausbau zu weiterem Wohnraum. Hier wurden bereits Leitungen hochgezogen. Die Grundfläche beträgt zum jetzigen Zeitpunkt ca. 133 m². Das 3. Dachgeschoss hat eine Grundfläche von ca. 65 m² und könnte als Abstellraum zu den Wohnungen diesen.
Wohnen:
- EG: * 2-Zimmer-Wohnung mit ca. 49,4 m² Wfl. und direktem Zugang zum Restaurant
- 1. DG: * 2-Zimmer-Wohnung mit ca. 68,5 m² Wfl.
* 3-Zimmer-Wohnung mit ca. 76,5 m² Wfl.
- 2. DG: Ausbaureserve mit einer Grundfläche von ca. 133 m² (Leitungen bereits vorhanden)
- 3. DG: Ausbaureserve mit einer Grundfläche von ca. 65 m²
Gewerbe:
- EG: Gastronomie mit einer Nutzfläche von ca. 169 m²
* inkl. ca. 29 m² lichtdurchfluteter und ganzjährig nutzbarer Wintergarten
* zzgl. schön angelegter Terrasse mit ca. 160 m²
- Beliebtes und etabliertes Griechisches Restaurant Taverne Areti
Renovierungen:
2015 Außenfassade mit Steinen versetzt und verputzt, Grillplatz angelegt
2015 Wintergarten neu geschaffen
2016 Renovierung Restaurant, neue Einrichtung inkl. Küche
2020 Heizung (Gaszentral) inkl. Heizkörper neu
2020 Fenster und Türen neu
2020 Fußböden neu
2021 Außentreppe zum 1. DG neu
Sonstiges:
- 973 m² großes, gut genutztes Grundstück
- Historisches Gebäude aus 1899 (kein Denkmal)
- Gepflegter Zustand, regelmäßig modernisiert
- Vielfältige Nutzungsmöglichkeiten
- Ausbaupotential zu weiterem Wohnraum
- Ansprechende und moderne Restaurant-Einrichtung mit Gastroküche inklusive
- Einbauküche und div. Möbel (nach Absprache) der Wohnungen inklusive
- Glasfaseranschluss
- Gute öffentliche Anbindung (S-Bahn- Anschluss nach Nürnberg bzw. Neumarkt i.d. Opf., Bus nach Burgthann und Altdorf)
- Stellplätze vorhanden
Das Anwesen liegt ruhig und dennoch verkehrsgünstig in der beschaulichen Ortschaft Mimberg, Pfeifferhütter Weg 2, zwischen Burgthann und Schwarzenbruck (je ca. 2 km) - südöstlich der Metropolregion Nürnberg.
Verkehrsanbindung:
Nach Feucht sind es ca. 6 km, nach Nürnberg Hbf ca. 21 km und nach Neumarkt i.d. Opf. ca. 19 km.
- S-Bahn Haltestelle Linie S3 (Nürnberg - Neumarkt) ist in 5 Minuten zu Fuß erreicht (350 m)
- Bushaltestelle in ca. 100 m (Linie 500/501 nach Burgthann, Linie 504 nach Altdorf)
- mit dem Auto ca. 27 Min. bzw. 21 km nach Nürnberg
- oder zur U-Bahn- Haltestelle Langwasser-Süd (ca. 17 Min. ) und dann mit der U1 ca. 14 Min zum Hbf.
Infrastruktur:
- Ärzte, Apotheken, Geschäfte des täglichen Bedarfs, Supermärkte wie EDEKA, ALDI, Lidl und Netto, Bäckerei "Beck" etc. in Schwarzenbruck, Burgthann und Feucht
- Spielplatz ca. 100 m
- Kinderkrippe und Kindergarten Buchfinken ca. 700 m
- Kita Waldwichtel und Grundschule in Schwarzenbruck
- Grund- und Mittelschule in Burgthann
- Realschule und Mittelschule in Feucht
- Gymnasium in Altdorf, Wendelstein und Nürnberg
- Rummelsberger Diakonie ca. 2,5 km: Krankenhaus, Seniorenheim, Berufsbildungswerk u. Akademie, Kita Waldwichtel
- AWO Senioreneinrichtung vor Ort (ca. 700 m)
Freizeit:
Rund um Mimberg gibt es eine sehr gute Mischung aus Freizeitangeboten:
- Schwimmbad Feucht, Langwasser, Postbauer Heng, Neumarkt
- Parkanlage Burgthann, eine kleine Grünanlage für Spaziergänge, Joggen oder Entspannung
- Zusätzlich typisch für die Region:
Wander- & Radwege im Nürnberger Land
Wälder, Hügel und Naturtouren z.B. Alter Ludwigskanal oder Schwarzachtal mit Schwarzachklamm
Gerne stehen wir Ihnen für weiterführende Fragen oder eine Besichtigung zur Verfügung.
Bitte füllen Sie dazu aus organisatorischen Gründen das Anfrageformular aus mit einer Telefonnummer, unter der wir Sie zur Terminvereinbarung erreichen können. Wir werden Sie dann persönlich kontaktieren und auch gerne Fragen beantworten.
Wenn Sie vorweg Fragen zu der Immobilie haben, können Sie gerne Herrn Weidel unter der Telefonnummer 0179-783 09 31 kontaktieren.
Bitte beachten Sie, dass die angegebenen Informationen auf Angaben des Eigentümers basieren und wir keine Haftung für deren Richtigkeit und Vollständigkeit übernehmen - Änderungen und Irrtum vorbehalten.
Energieausweis (Bedarfsausweis)
311,50 kWh / (m²*a) Endenergiebedarf
311,50 kWh / (m²*a) Endenergiebedarf
311,50 kWh / (m²*a) Endenergiebedarf
Weitere Informationen
| Wesentlicher Energieträger | Gas |
| Energieausweis Ausstelldatum | 2023-12-05 |
| Energieausweis gültig bis | 05.12.2033 |
| Energieausweis Jahrgang | ab dem 1.5.2014 |
| Energieausweis Werteklasse | H |
| Energieausweis Baujahr | 1899 |
| Energieausweis Gebäudeart | Gewerbe |
| Heizung | Zentralheizung |
| Befeuerung | Gas |
Ich bin damit einverstanden, dass mir Karten von Google angezeigt werden. Es gelten die Datenschutzbedingungen von Google (https://policies.google.com/privacy).
Ich bin einverstanden